С чего начать планировку кухонной мебели
Перед началом планирования будущей кухонной мебели необходимо для себя решить: как будет расположена мебель в помещении, в каком основном стиле она должна быть, как разместить основные рабочие зоны.
Планировка кухни бывает 4 основных видов: прямая (вдоль одной стены), L-образная (вдоль двух стен), П-образная (вдоль трех стен), островная (используется редко).
При прямой планировке можно четко распределить рабочие зоны, но такая кухня подойдет маленькой семье или холостяку.
Угловую кухню L- или П-образного вида сложно правильно рассчитать, поэтому необходимо обратиться к умелому дизайнеру. Выдвижные ящики не должны мешать при открытии друг другу, углы кухни следует планировать так, чтобы они были максимально доступны для хозяев. Островная планировка помимо угловой корпусной мебели представляет собой «остров», на котором расположен дополнительный стол с плитой, духовым шкафом, сушилкой. Этот вид планирования подойдет только для кухонь больших размеров, и он не совсем удобен, если у вас в квартире нет столовой.
Существуют два основных стиля оформления кухни: классика и модерн.
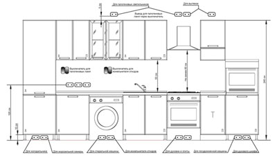
Основными чертами классики является: преимущественное использование вертикальных фасадов, возможно, филеночных, старинных ручек, декорированной вытяжки и использование стекол в верхнем ряду. Все остальное относиться к модерну: горизонтальные однотонные глянцевые фасады, отсутствие ручек, оригинальность форм и конструкций. Кроме того, советуем на сайте work.ua Вы сможете найти не только работу, но и почитать интересные и полезные материалы. Расположение основных кухонных зон (приготовление прием пищи, мойка, плита) обязано быть гармоничным, поэтому следует сначала сделать карту кухни и разбить рабочую поверхность на зоны. Зона «огня» не должна быть с зоной «воды», так что мойку и плиту лучше разместить по разным сторонам. Зона приготовления пищи приближается к плите.
• Рубрики: Кухни
• Метки: корпусная мебель, кухни, кухонная мебель, мебель, обзор, планировка, советы
• Наверх
